Vivienda de obra nueva en Segovia con diseño rústico‑moderno

Casa de piedra de dos plantas con grandes ventanales, porche cubierto, zona de estar exterior y piscina en un jardín cerrado por un muro de piedra.
Vista aérea de casa de piedra de dos plantas con grandes ventanales, porche cubierto, zona de estar exterior y piscina en un jardín cerrado por un muro de piedra.
Vista aérea de casa de piedra de dos plantas con grandes ventanales, porche cubierto, zona de estar exterior y piscina en un jardín cerrado por un muro de piedra.
Interior rústico‑moderno con vigas de madera vistas, cocina abierta, comedor y salón con chimenea y grandes ventanales hacia el jardín en castilla y leon
Interior rústico‑moderno con vigas de madera vistas, cocina abierta, comedor y salón con chimenea y grandes ventanales hacia el jardín en castilla y leon

Situación: Segovia

Proyecto: 2024

Obra: 2025

Superficie construida: 240 m2

Fotografía: Ignacio Barco

Esta vivienda unifamiliar de obra nueva en Segovia se concibe como una casa moderna, eficiente y perfectamente integrada en el paisaje natural de la provincia. El proyecto combina la calidez de los materiales tradicionales —piedra natural, madera y cubiertas inclinadas— con soluciones constructivas contemporáneas propias de una casa pasiva, ofreciendo un nivel de confort y eficiencia energética muy superior al de una vivienda convencional.

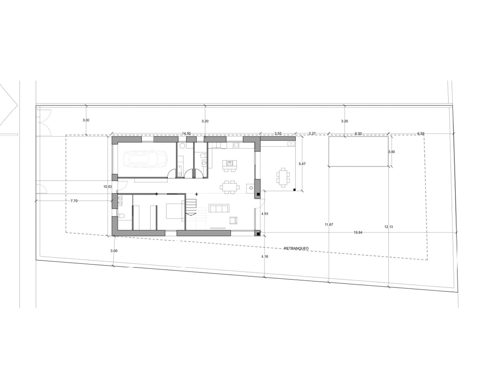
La planta baja se organiza en torno a un gran espacio diáfano que reúne salón, cocina y comedor bajo una cubierta inclinada con vigas de madera vistas. Los grandes ventanales en carpintería gris antracita conectan el interior con el jardín y permiten que la luz natural sea protagonista durante todo el día. En este nivel se ubica también el dormitorio principal, con vestidor y baño en suite, garantizando accesibilidad y comodidad en el uso diario. El porche cubierto, la zona exterior de estar y la piscina completan un conjunto pensado para disfrutar del clima y del entorno durante todo el año.

La planta superior incorpora un altillo abierto hacia la doble altura del salón, un dormitorio adicional, dos baños y una terraza. Esta configuración potencia la amplitud visual, mejora la ventilación cruzada y permite una distribución flexible adaptada a diferentes formas de habitar.

 

La vivienda se ha diseñado siguiendo criterios de arquitectura pasiva: envolvente térmica reforzada, aislamiento de altas prestaciones, rotura de puentes térmicos, hermeticidad controlada y carpinterías eficientes. Todo ello se combina con un sistema de climatización mediante aerotermia, que proporciona calefacción, refrigeración y agua caliente sanitaria con un consumo energético mínimo. Gracias a estas soluciones, la casa mantiene una temperatura estable y confortable durante todo el año, reduciendo drásticamente la demanda energética y los costes de mantenimiento.

El uso de piedra natural aporta inercia térmica y durabilidad, mientras que la madera vista y los acabados neutros generan un ambiente cálido y contemporáneo. La relación entre interior y exterior es uno de los ejes del proyecto: los grandes ventanales, la continuidad visual hacia el jardín y la integración de la piscina crean una vivienda abierta al paisaje, luminosa y conectada con su entorno.

El resultado es una vivienda unifamiliar moderna y eficiente, diseñada para quienes buscan una casa de obra nueva en Segovia con altas prestaciones, bajo consumo energético y un diseño arquitectónico cuidado. Una casa preparada para el futuro, que combina tradición constructiva, tecnología actual y una manera de habitar más saludable, sostenible y confortable.